Napl南岸普力 TAC16P单相调压/调功电力调整器
Napl TAC16P单相调压调功一体化电力调整器

最大电流1500A
■大功率固态电力模块级数应用的新产品
■单相调压/调功一体化,调功方式可选周波或占空比(PWM)
■采用微处理器数字化设计,锁相环同步电路、3V AC低电压启动、上电缓启动、缓关断、散热器超温报警、电流限制、过流保护、手/自动无扰切换等功能等
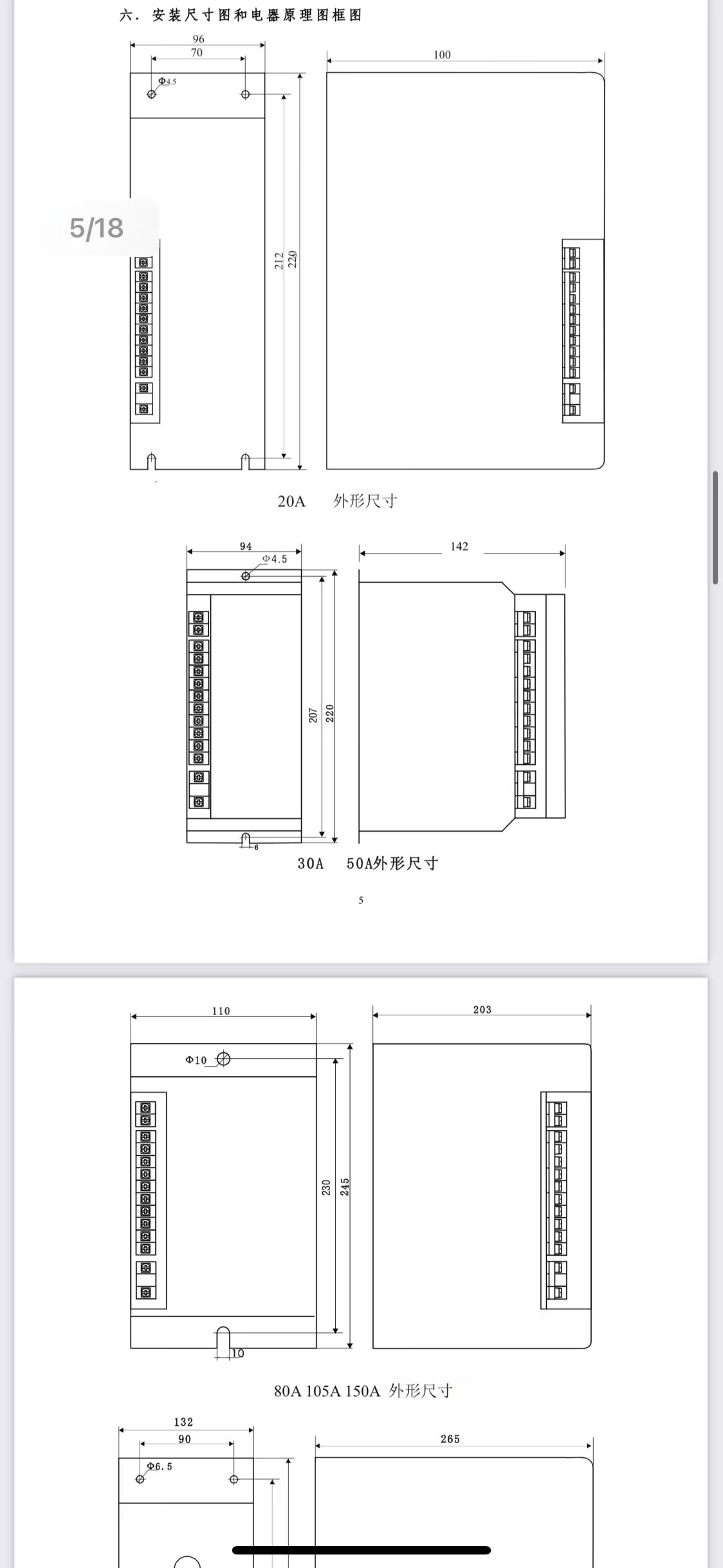
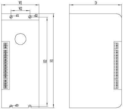
■电流容量:
可选20A 30A 50A 80A 105A 150A 195A 255A 300A 400A 500A 600A
■控制板电压:220V AC/380V AC
■适用于阻性负载和感性负载,能有效地控制硅碳棒 、硅铝棒、电热管、镍鉻丝、变压器器等负载
一.选型表

二.订货说明:
1.电力调整器的电流容量选择参考
- 一般纯阻负载:所选电力调整器的电流容量应大于负载最大电流。
- 硅碳棒负载:当取消变压器时,硅碳棒应串联,使之能够承受电源电压的70%~80%以上。硅碳棒在700~800℃存在负阻区,所选的电流容量应大于负载电流1.3倍以上。
- 电热管负载:易受潮、局部短路等,所选的电流容量应大于负载电流1.3倍以上。
- 变压器负载:应带电流限制功能,所选电力调整器的电流容量应大于负载电流1.5倍以上。
- 定货例:TAC16P4-22-080-N00F
例1:TAC16P4-22-080-N00F,含义如下:
TAC16P单相电力调整器,4~20mA控制信号输入,控制板及负载均为220V电源,电流容量80A,带快熔(纯阻负载最大电流80A;硅碳棒负载、电热管负载最大电流62A;变压器负载最大电流53A)。
例2:TAC16P-90-080-I00F,含义如下:
TAC16P单相电力调整器,4~20mA控制信号输入,控制板电源为220VAC或380VAC均可,频率50HZ或60HZ均可,电流容量80A(纯阻负载最大电流80A;硅碳棒负载、电热管负载最大电流62A;变压器负载最大电流53A),带恒流、电流限制功能和过流报警功能,带快速熔断器。



更多最新评论
快速评论